〒838-0112 福岡県小郡市干潟1489-5
0942-72-0400
トップページ
企業情報
会社概要
会社方針
会社沿革
グループ会社
取引業者様へ
施工例/製品一覧
特定建設業許可
採用情報
お問い合わせ
施工例/製品一覧
ミリオンルーフ 各種納め参考図
ミリオンルーフ
角V-500納め参考図
ミリオンルーフ
150納め参考図
ミリオンルーフ
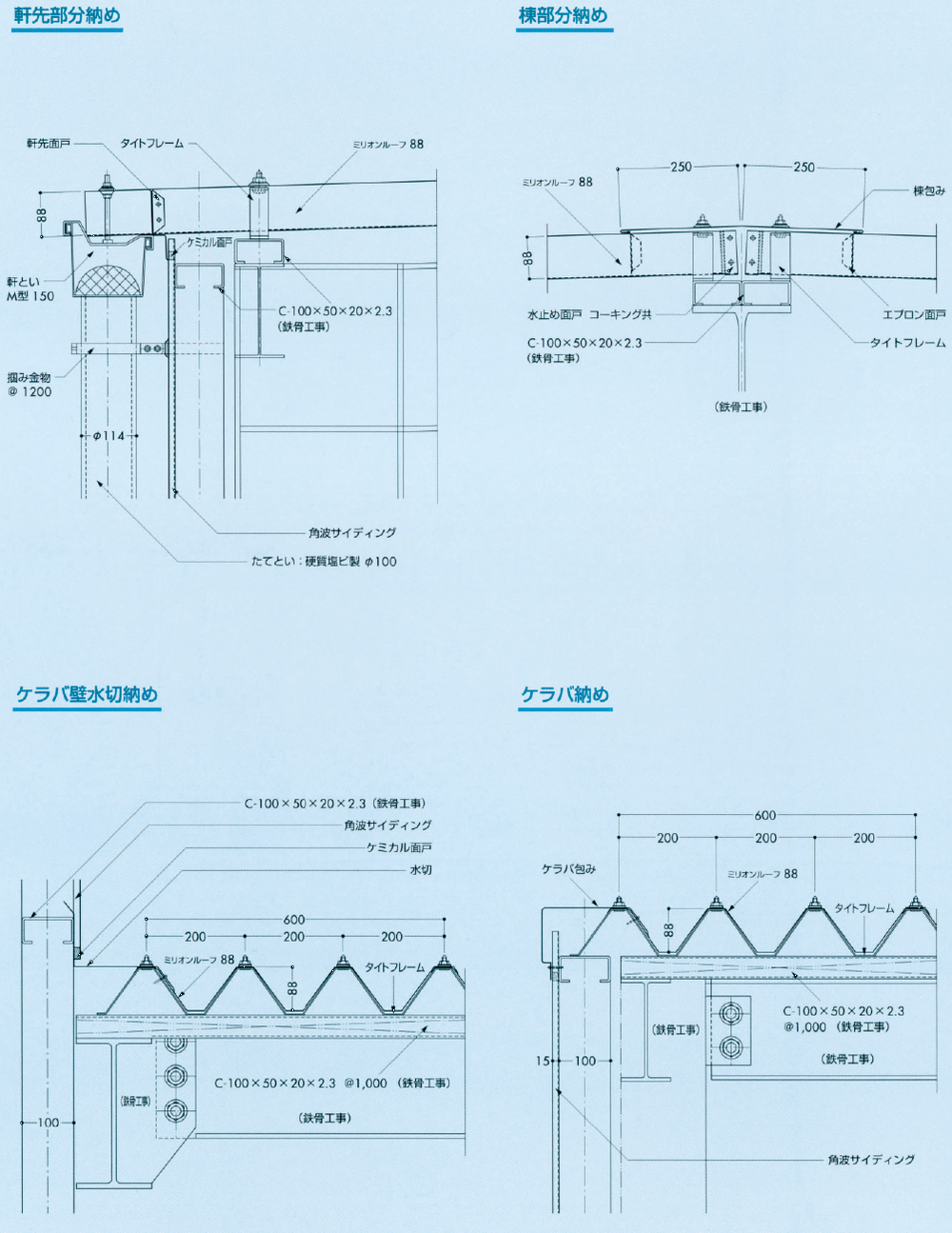
88納め参考図
ミリオンルーフ
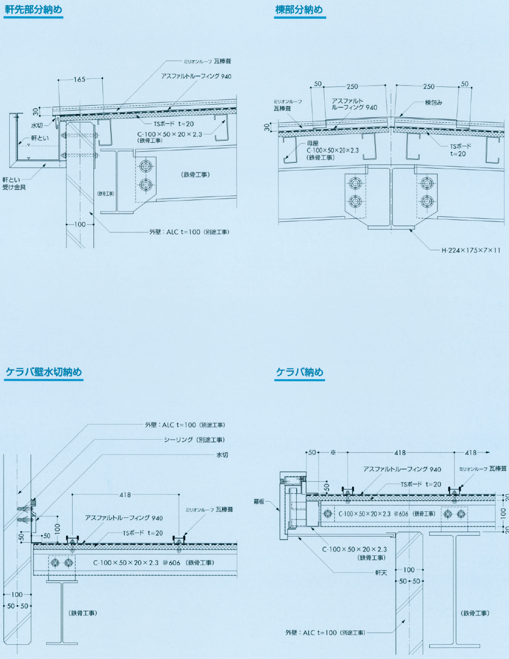
瓦棒葺納め参考図
ミリオン
断熱材
野地下地材・防湿材
ミリオン
塩ビパイプVP
VU管/排水システム
■ 施工例/製品一覧
はぜ締め形折板屋根
重ね形折板屋根
折板屋根関連
瓦棒葺・立平葺屋根
波板
改修屋根
横葺屋根
一文字葺屋根
外装材
参考資料